Appartement à vendre 2 chambres à Luxembourg-Centre ville

  • Référence : 86469451
  • Type : Appartement
  • Chambres : 2
  • Salle de douche : 1
  • Surface habitable : +/-77,78 m2
  • Prix de vente : 1 075 000 €
  • Honoraires d'agence :
  • Année de construction : 2026
Contact
Classe énergétique
A
Classe d'isolation thermique NC

Description

Résidence GERSHWIN en construction sise à Luxembourg-Merl rue Giselbert
Date d'achèvement septembre 2026

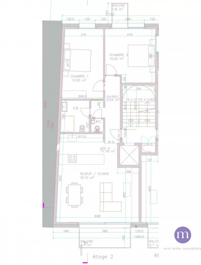
Appartement sis au 2ème étage de 77,78 m2 avec une surface balcon de 7,50 m2 et comprenant: living avec cuisine ouverte donnant sur balcon, 2 chambres à coucher donnant également sur balcon, salle de douche, WC séparé, hall d'entrée, cave privative 6 m2 et un emplacement de parking intérieur automatique (parklift), buanderie commune et local vélos.

Aménagement intérieur:
-> chauffage au sol (pompe à chaleur), parquet, robinetterie encastrée Grohe, fenêtre bois-aluminium à triple vitrage, stores à lamelles électriques et ventilation double flux

-Passeport énergétique: AA
-panneaux solaire pour production d'eau chaude sanitaire
-façade ventilée avec des panneaux en Trespa (ou similaire)

Prix appartement avec cave et parking: 1.075.000,00 € (résidence principale)
Le prix annoncé comprend la TVA 3% (TVA au taux super-réduit de 3% sous réserve de l'accord de l'administration compétente)
Prix TVA 17%: 1.125.000,-€ (pour investissement)

Résidence de haut standing, très bonne situation, proche de tout commerce, campus scolaire, écoles, Conservatoire, Parc de Merl; avec accès direct vers autoroute et très bonne connexion bus via la Place de France

Caractéristiques

Intérieur

SalonOui
CuisineOui
Cuisine séparéeOui

Sanitaires

Salle de douche1
Toilette séparée1

Extérieur

Balcon7 m²

Voiture

Garage1

Autres

AscenseurOui
CaveOui
BuanderieOui

Chauffage / climatisation

ChauffageOui

Contactez-nous

+352 26 38 76 1

Vous
 
Champs obligatoire
 
 
En envoyant ce formulaire, j’accepte que mes informations soient enregistrées puis utilisées par notre agence afin de répondre à ma demande. Consultez notre pour connaître vos droits.
 

Localisation

Luxembourg-Centre ville